Haus und Ausstattung
Dein Platz an Deck
Mach’s dir in deiner Koje gemütlich und genieß das Gefühl, angekommen zu sein. Unsere Räume sind hell, modern und mit viel Liebe gestaltet.
Perfekt für Gruppen, Familien oder Freundescrews, die das Meer lieben.
Das DIJKE HAUS
- alle Kojen und Salons (Gruppenräume) sind klimatisiert
- 19 Kojen mit insgesamt 48 Betten auf zwei Etagen verteilt
- im Detail: Das OG bietet 11 Kojen mit 32 Betten und das EG hat 8 Kojen mit 16 Betten
- jeweils 2 der 2-4 Bett-Kojen teilen sich ein Bad, 3 Zimmer haben ein eigenes Bad
- Einzel-, Doppel- sowie Etagenbetten
- zwei teilweise barrierearme Zimmer (individuelle Abstimmung nötig)
- zwei separate große Salons (Gruppenräume) machen es möglich, dass zwei unterschiedliche Gruppen parallel zu Gast sein können
- Salon 1 fasst als Speisesaal bis zu 50 Personen
- Salon 1 mit separater moderner Industrieküche mit Konvektomat, zwei Fritteusen, Gasherd, Industriespülmaschine, Gefrier/+Kühlschränke
- Salon 2 verfügt über Platz für 24 Personen und eine Küchenzeile mit großem Induktionskochfeld, Herd, Spülmaschine, Gefrier/+Kühlschrank
- Salon 2 hat eine indoor Tischtennisplatte sowie eine Spiegelfläche an der Wand, wodurch sich dieser Raum für vielseitige Spiel- und Sportaktivitäten eignet
- Kinderhochstuhl + Tripp-Trapp
- Kaffeeecke und Getränke (gegen Gebühr)
- Waschmaschine und Trockner (gegen Gebühr)
- Kostenfreies WLAN
- Gemeinschafts-WC für Menschen mit Beeinträchtigung
- Kicker im Foyer
- Musikanlage auf Anfrage
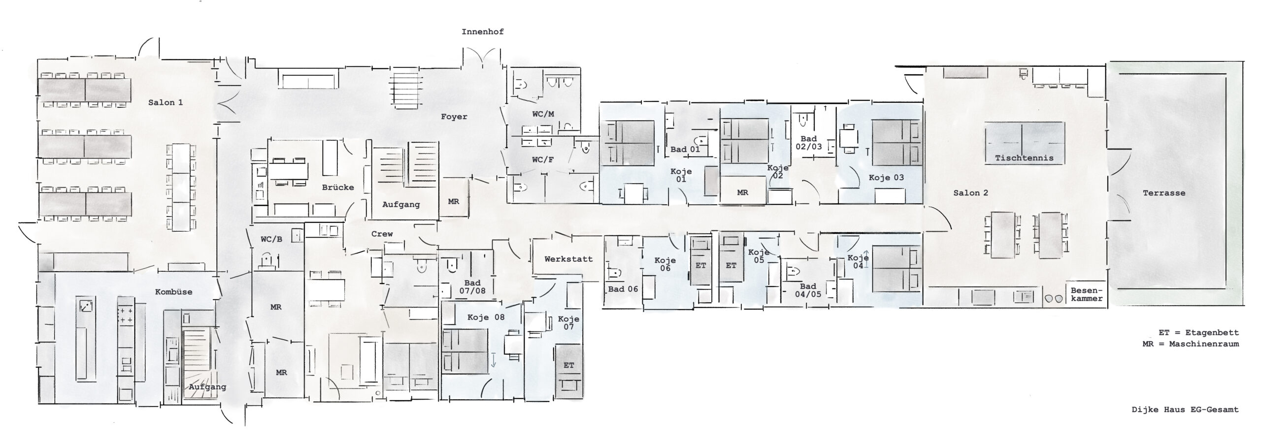
Das Erdgeschoss
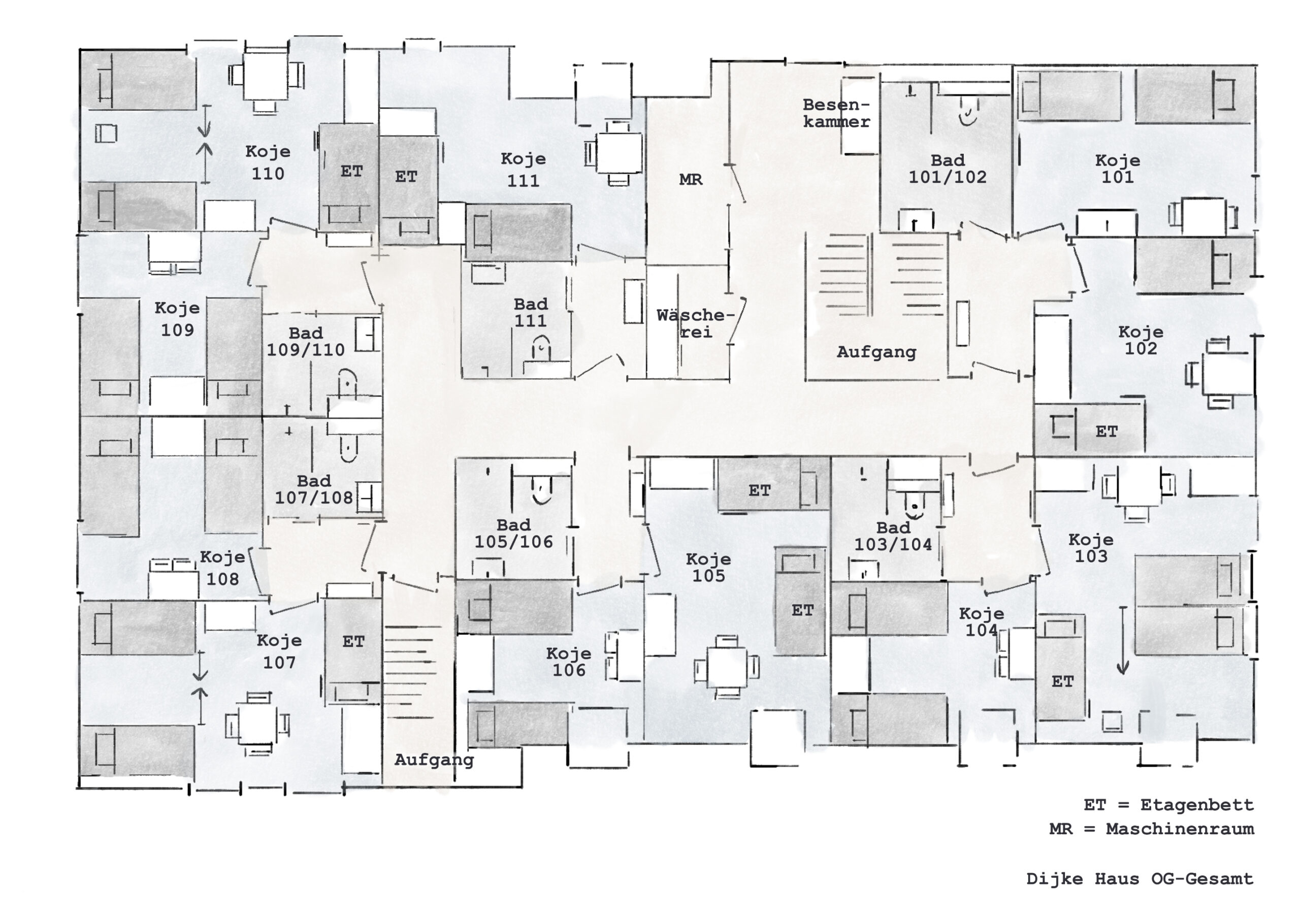
Das Dijke Haus verfügt über 2 Etagen, 19 Schlafräume, 48 Betten und 2 Gruppenräume. Das OG bietet 11 Kojen mit 32 Betten und das EG hat 8 Kojen mit 16 Betten. Jeweils 2 der 2-4 Bett-Kojen teilen sich ein Bad. 3 Zimmer haben ein eigenes Bad.
Die zwei separaten Gruppenräume machen es möglich, dass zwei unterschiedliche Gruppen parallel zu Gast sein können. Salon 1 fasst als Speisesaal bis zu 50 Personen, verfügt über eine separate moderne Industrieküche mit Konvektomat, zwei Fritteusen, Gasherd, Industriespülmaschine sowie Gefrier/+Kühlschränke.
Salon 2 verfügt über Platz für 24 Personen, hat eine Küchenzeile mit großem Induktionskochfeld, Herd, Spülmaschine sowie Gefrier/+Kühlschrank. Dazu gibt es eine indoor Tischtennisplatte sowie eine Spiegelfläche an der Wand, wodurch sich dieser Raum für vielseitige Spiel- und Sportaktivitäten eignet.
Das Obergeschoss
Der Aussenbereich
- Beachvolleyball
- Wiesen-Bolzplatz mit kleinen Alu-Toren
- Großes Air-Trampolin
- Sandkasten und Sandspielzeug
- Terrasse & Innenhof mit Bierzeltgarnituren
- 65 cm Schwenkgrill (exkl. Kohle)
- 3-flammiger-Gasgrill (exkl. Gas)
- Feuerschale (exkl. Holz + Anzünder)
- diverse Bälle/Spiele (Fußball, Beachball, etc.)
Dein Platz an Deck
Sonnencreme ein und komm an Board.
